Будьте всегда в курсе!
Узнавайте о скидках и акциях первым
Новости
Все новости
23 января 2026
Важное сообщение о работе нашего сайта
28 февраля 2022
Цены на сайте
30 декабря 2021
Режим работы ЛАД Фурнитура на новогодние праздники
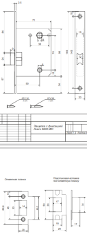
Защёлка с фиксацией Avers 5600-WC-BN
- Описание
- Характеристики
- Отзывы
- Задать вопрос
-
ОписаниеЗащёлка с фиксацией Avers 5600-WC-BN с фиксацией, для межкомнатных дверей. Размеры корпуса подходят для установки с дверными ручками на розетке в комплекте с накладкой на цилиндр или сантехническим фиксатором. Межосевое расстояние: 70 мм. 200 000 циклов безотказной работы. Соответствие ГОСТу подтверждено сертификатом. Лучший выбор рачительных хозяев.
Документы
Эскиз защелки с фиксацией Avers 5600-WC-BN Размер: 46,9 кб -
Характеристики
Бренд Avers Цвет Никель черный Тип фиксации Фиксатор (поворотная ручка) Удаление квадрата под ручку (Backset) 50 Материал Сталь Тип механизма защелки Классический Страна происхождения Китай Дополнительная фиксация Да Тип упаковки Коробка Тип установки Врезной Цвет лицевой планки Черный никель Межосевое расстояние 70 мм Удаление ключевого отверстия (Backset) 50 мм Тип механизма защелки Классический Комплектуется поворотной ручкой/вертушкой Нет Бренд_число 57 Дополнительная фиксация Да Тип фиксации Поворотной ручкой Размер сечения квадрата ручки 8 мм Количество циклов безотказной работы 200 000 Максимальный угол поворота ручки 30 Размер сечения квадрата фиксатора 6 мм Страна происхождения Китай Вес, кг 0.308 Гарантия 1 год - Отзывы
-
Задать вопросВы можете задать любой интересующий вас вопрос по товару или работе магазина.
Наши квалифицированные специалисты обязательно вам помогут.

























